学校主页
检索
首页
概况
本院概况
专业介绍
师资队伍
新闻
学生管理
学工办介绍
学工信息
团委信息
党建先锋
通知公告
通知公告
竞赛通知
作品
课程作品
毕业作品
竞赛作品
联系
作品
课程作品
产品设计专业
风景园林专业
环境设计专业
视觉传达设计专业
数字媒体艺术专业
毕业作品
产品设计专业
风景园林专业
环境设计专业
视觉传达设计专业
数字媒体艺术专业
竞赛作品
产品设计专业
风景园林专业
环境设计专业
视觉传达设计专业
数字媒体艺术专业
环境设计专业
当前您的位置:
首页
>
作品
>
课程作品
>
环境设计专业
>
正文
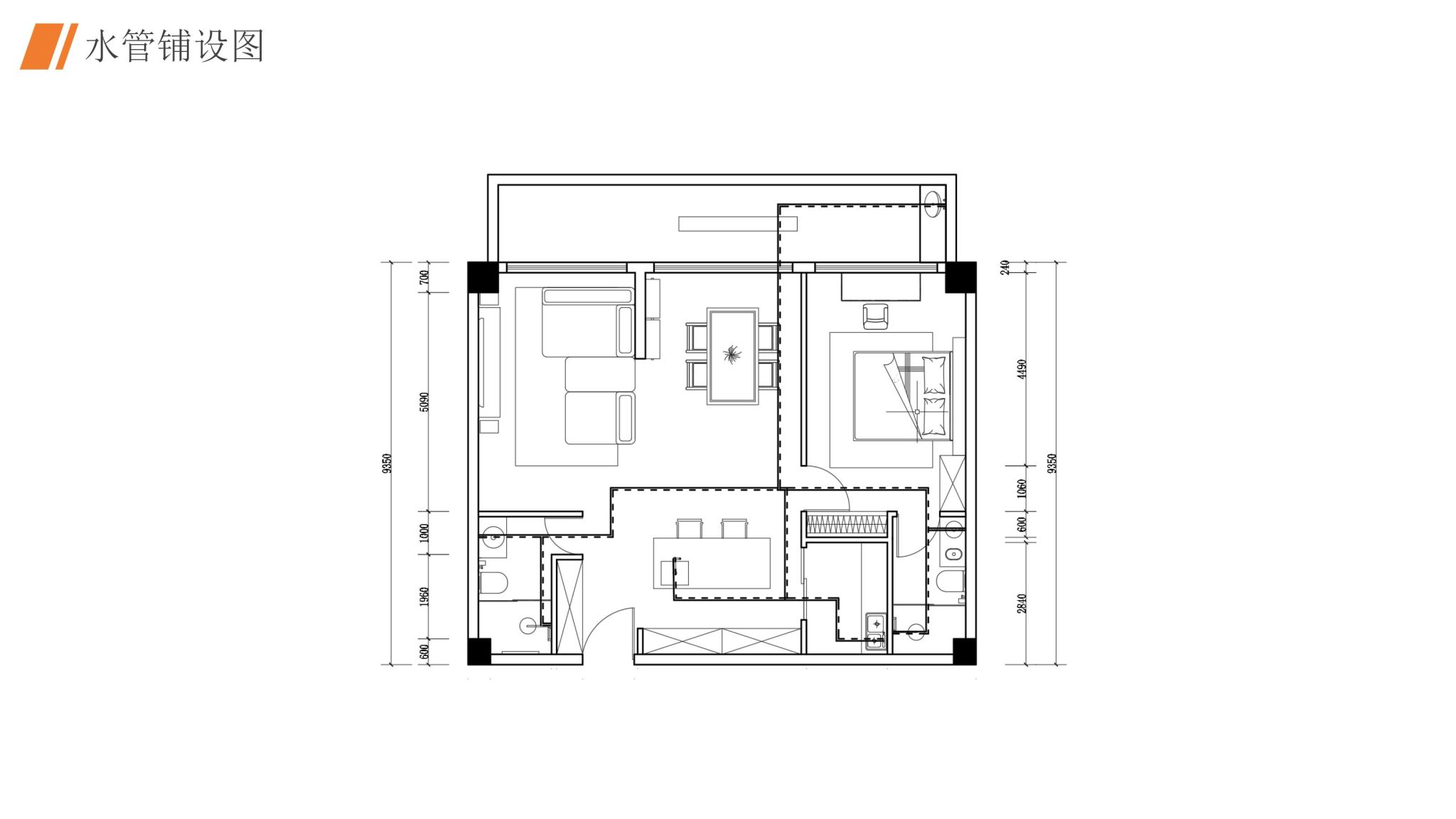
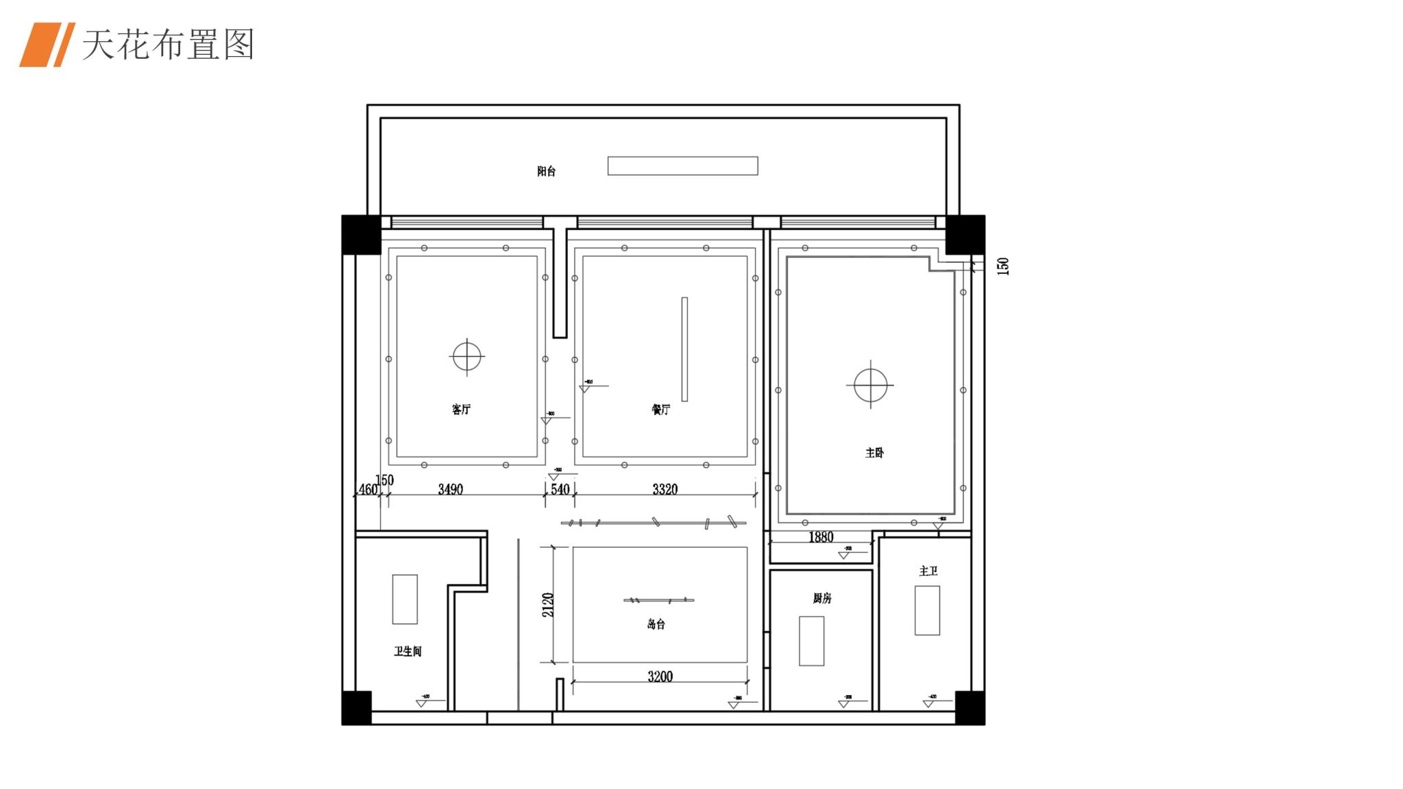
室内设计原理- 苏洛民- 《教室改造》
发布日期:2024-12-30
点击量:
指导老师
朱奕敏
上一篇:
室内空间设计(办公空间)- 刘文昊- 《办公家具》
下一篇:
室内设计原理- 陈丽花- 《教室改造》